下載app免費領取會員
在日常工作中,繪制好某單元的構件后進行復制或鏡像是經常會出現的情況。但是,在Revit中,連接了導線的電氣構件,在復制或鏡像時,則需要特別注意構件與導線同時進行復制或鏡像操作。
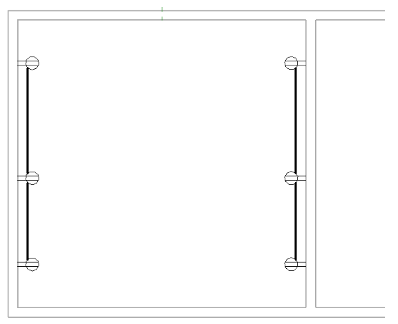
以復制為例,我們可以將電氣構件與其連接的導線一同選中,進行復制操作。

復制完成后如下圖

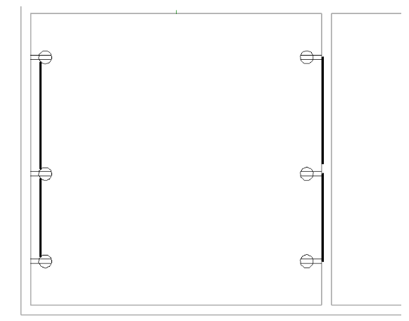
那么,如果我們把構件和導線分開兩次進行復制,則導線連接將會出錯,導致無法有效連接。

同理,使用鏡像命令時,也需注意同時進行構件和相連導線的鏡像。
同時鏡像:

分兩次鏡像

本文版權歸腿腿教學網及原創作者所有,未經授權,謝絕轉載。
上一篇:Revit技巧 | 關于Revit中模型填充圖案線與門窗構建對齊及標注的方法
下一篇:Revit技巧 | Revit連接件設置方法:圓形連接件大小選項的使用方法
推薦專題