下載app免費領取會員
來源丨益埃畢教育
在模型中,參數是重中之重,而為了有效的利用參數,Revit在2017及以上的版本添加了一個新的功能——全局參數。全局參數是針對于參數類型的控制,可以控制不同類型圖元的變化。下面以長度為例進行講解。
1、點擊“管理”選項卡下的“全局參數”命令,如圖所示。

2、打開后進入“全局參數”面板,可以新建、編輯和調整全局參數,此處新建一個全局參數,命名為“尺寸”,如圖所示。

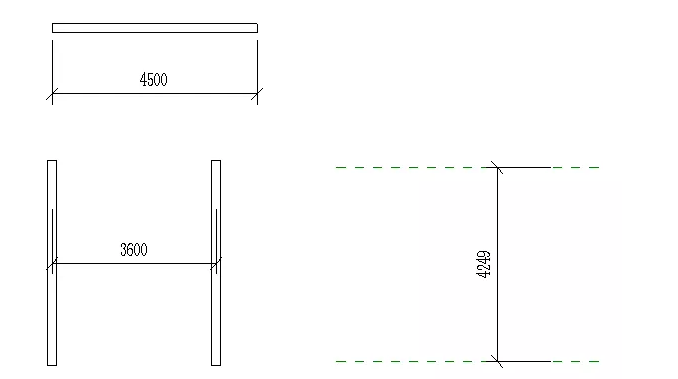
3、在繪圖區域創建如圖所示圖元,并添加尺寸標注。

4、選中尺寸標注,在“標簽尺寸標注”面板下“標簽”選擇參數“尺寸”,觀察圖元的變化,如圖所示。


5、通過點擊尺寸線旁的浮動編輯按鈕,彈出“全局參數”對話框,可以對全局參數值進行修改,如圖所示。


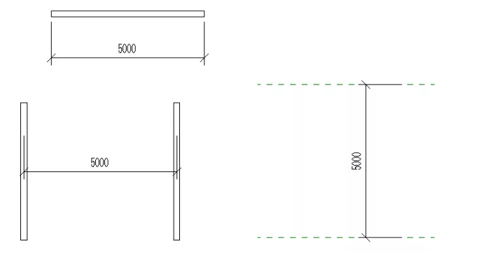
6、修改完成后點擊“確定”,圖元變化如圖所示。

意義:通過學習上述講解,學會了全局參數的使用,在建模過程中可以通過創建全局參數的方法來控制圖元,加快建模速度。
-END-
Revit中文網作為國內知名BIM軟件培訓交流平臺,幾十萬Revit軟件愛好者和你一起學習Revit,不僅僅為廣大用戶提供相關BIM軟件下載與相關行業資訊,同時也有部分網絡培訓與在線培訓,歡迎廣大用戶咨詢。
網校包含各類BIM課程320余套,各類學習資源270余種,是目前國內BIM類網校中課程最有深度、涵蓋性最廣、資源最為齊全的網校。網校課程包含Revit、Dynamo、Lumion、Navisworks、Civil 3D等幾十種BIM相關軟件的教學課程,專業涵蓋土建、機電、裝飾、市政、后期、開發等多個領域。
需要更多BIM考試教程或BIM視頻教程,可以咨詢客服獲得更多免費Revit教學視頻。
本文版權歸腿腿教學網及原創作者所有,未經授權,謝絕轉載。
上一篇:CAD教程 | 如何在CAD2023中創建具有寬度的矩形
下一篇:CAD教程 | 如何在CAD2023中繪制帶有厚度的矩形
推薦專題