下載app免費領取會員
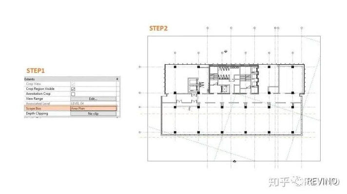
1.工作中算面積是常態,而Revit中的算面積很方便;我們經常會遇到按不同的指標或屬性來算面積的情況,比如分層面積表(按層來算GFA),辦公或醫療面積(按功能來),綠化率計算,防火分區計算等等;這時我們在一個revit文件下就需要建立不同的面積方案;同時也會用不同的填充來直觀的演示和出圖,我們看下具體的操作流程:“建筑”-“面積”-“面積和體量計算”-“面積方案”;(這里會有兩個主菜單,在“計算“菜單里主要管理面積計算的規則,比如按墻中心線或外邊線計算面積等,我們這里選擇“面積方案”)在出現的列表里會羅列目前文件所有的面積方案,我們希望在不影響其他方案的基礎上,需要新建一個方案。

2.新建后,在“視圖”-“平面視圖”-“面積平面”,然后這里重點的是我們需要選擇我們剛剛新建的面積方案,(如果不,直接會影響其他已經做好的面積方案,比如會誤刪掉之前做好的綠化率的面積線等),然后選擇我們需要計算面積的樓層,出現的對話框一般我們選擇否,不自動建立面積線(如果是,如果建筑很復雜,會生成很多我們不想要的面積線)

3.新建完面積樓層視圖后,我們打開此視圖,這里我們同時介紹一下ScopeBox范圍框,
個人超級喜歡的視圖神器,簡單來說,范圍框就是可以任意的選擇視圖的顯示方向,方便看圖,出圖。
打開新建視圖后,顯示如下圖,樓體與項目北有一個角度,看圖和畫圖都不方便,我們喜歡把樓體在圖紙視圖里轉正(當然不會影響其真實的世界坐標和定位),(這里有一個TIPS,如果我們之間畫scopebox,然后旋轉,旋轉工具是沒辦法自動捕捉scopebox的框線的,會不精確),所以我的做法是:先畫輔助線,“建筑”-“參考平面”,我們畫一條垂直于項目北的參考線,然后量取目前的建筑幕墻與參考線的角度,即是我們scopebox需要旋轉的角度

4.然后在“視圖”-“范圍框”,選擇scopebox工具,先在建筑需要看到的范圍畫一個框,然后選擇旋轉工具,旋轉scopebox,旋轉的角度即我們剛才量取的角度。同時在屬性面板里,我們需要給scopebox命名。

5.這時,我們在屬性面板下的,“擴展”列下的“范圍框”一欄,選擇我們剛新建的scopebox,這時我們就會看到視圖已經旋轉,目前建筑體量橫平豎直的顯示在屏幕上。

6.調整完視圖,我們就在調整好的視圖的基礎上建立面積平面,“面積”-“顏色方案”我們來新建顏色方案,在“類別”選項下拉表里選擇我們的面積方案;(這里注意的是有時候選擇了別的方案,就會出現給了顏色方案,但圖紙里不顯示顏色的情況)

7.選擇“面積邊線”來繪制面積范圍,同時給每個面積范圍命名,比如防火分區,此時再打開編輯顏色方案對話框,在“顏色”列表下選擇按“名稱”來顯示顏色。

8.同時可以編輯每個面積范圍的顯示顏色或填充圖案

9.最后,重要的是將顏色方案應用于此視圖,我們本視圖沒有采用視圖樣板,所以直接在屬性面板里將“顏色方案”改成我們新建的顏色方案(如果有視圖樣板,需要在視圖樣板里統一設定),這時顏色就顯示在視圖中。

Revit中文網作為國內知名BIM軟件培訓交流平臺,幾十萬Revit軟件愛好者和你一起學習Revit,不僅僅為廣大用戶提供相關BIM軟件下載與相關行業資訊,同時也有部分網絡培訓與在線培訓,歡迎廣大用戶咨詢。
網校包含各類BIM課程320余套,各類學習資源270余種,是目前國內BIM類網校中課程最有深度、涵蓋性最廣、資源最為齊全的網校。網校課程包含Revit、Dynamo、Lumion、Navisworks、Civil 3D等幾十種BIM相關軟件的教學課程,專業涵蓋土建、機電、裝飾、市政、后期、開發等多個領域。
需要更多BIM考試教程或BIM視頻教程,可以咨詢客服獲得更多免費Revit教學視頻。
本文版權歸腿腿教學網及原創作者所有,未經授權,謝絕轉載。
上一篇:Revit技巧 | Revit參照線有什么用?Revit中參照線在墻體上的妙用
下一篇:Revit技巧 | Revit明細表怎么設置?關于Revit明細表設置教程
推薦專題