下載app免費領取會員
想要系統性掌握BIM技能,不能只停留在理論知識上,實操也是關鍵一步。
拒絕紙上談兵,提升操作技巧,從點滴開始積累。今天我們來學習Revit實操小技巧之結構柱中異形柱的創建。
Revit提供兩種柱,即結構柱和建筑柱。建筑柱適用于墻垛、裝飾柱等,非承重構件。在框架結構模型中,結構柱是用來支撐上部結構并將荷載傳至基礎的豎向構件。
在本案例中用到的結構柱為異形柱,并非常見的矩形柱、圓形柱等。所以需要先創建對應的異形柱族,然后放置這些結構柱。
異形柱族的創建
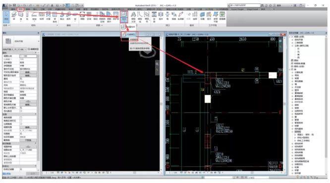
1)此處以內建族方法創建異形族構件,如圖1及圖2所示,點擊“結構→構件→內建模型”,在彈出的“族類別與族參數”對話框中選擇“結構柱”,單擊“確定”按鈕,為族指定為“結構柱”的族類別。

(1)內建族命令

(2)內建族指定族類別
2)輸入此內建族的名稱“GBZ13”,單擊“確定”按鈕,如圖3所示。

(3)命名族名稱
3)使用拉伸命令,繪制此結構柱的輪廓形成閉合圖形,因“6F”(六層)與“7F”(七層)標高差異為“2800”,所以將此內建族的拉伸終點設為“2800”,如圖4及圖5所示

(4)設定拉伸起終點高度

(5)拉伸命令創建模型
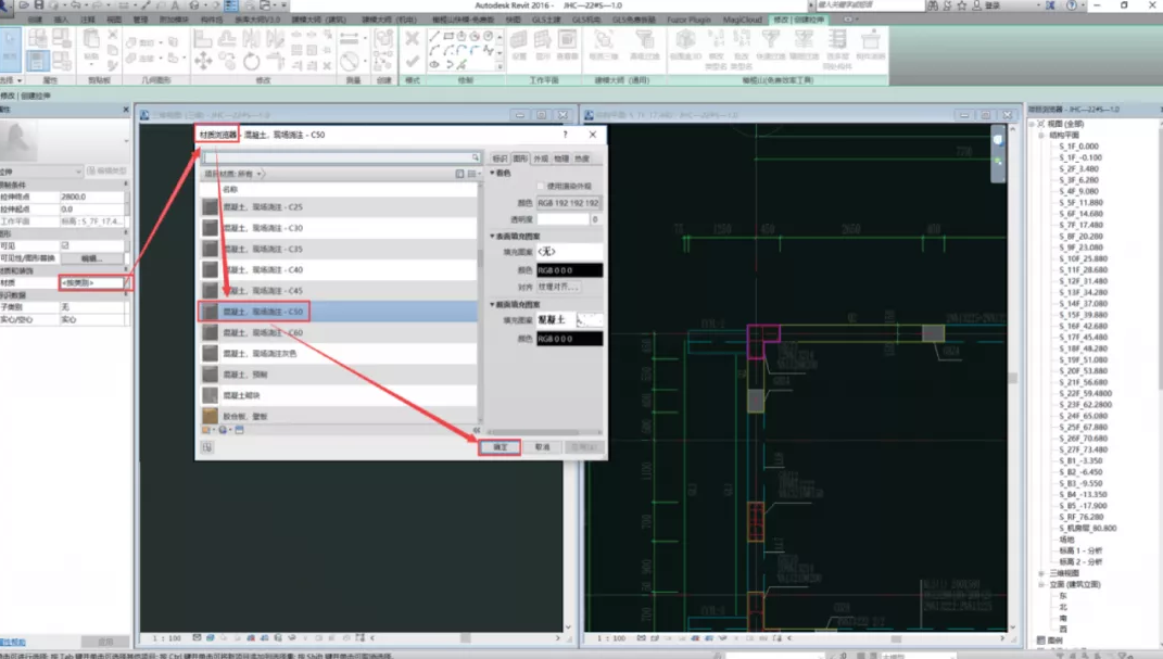
4)為此結構柱賦予材質:如圖6所示,點擊屬性欄“材質”右側“按類別”,在彈出的“材質瀏覽器”對話框中選擇“混凝土,現場澆注-C50”,單擊“確定”按鈕。然后單擊頂部綠色按鈕?→“完成編輯模式”,如圖7所示,最后點擊“在位編輯器→完成模型”,即完成內建族結構柱的模型創建。

(6)賦予構件材質

(7)完成內建族編輯模式
按步驟(1)所述方法將本層結構異形柱全部創建完畢

本層結構異形柱創建完畢
Revit中文網作為國內知名BIM軟件培訓交流平臺,幾十萬Revit軟件愛好者和你一起學習Revit,不僅僅為廣大用戶提供相關BIM軟件下載與相關行業資訊,同時也有部分網絡培訓與在線培訓,歡迎廣大用戶咨詢。
網校包含各類BIM課程320余套,各類學習資源270余種,是目前國內BIM類網校中課程最有深度、涵蓋性最廣、資源最為齊全的網校。網校課程包含Revit、Dynamo、Lumion、Navisworks、Civil 3D等幾十種BIM相關軟件的教學課程,專業涵蓋土建、機電、裝飾、市政、后期、開發等多個領域。
需要更多BIM考試教程或BIM視頻教程,可以咨詢客服獲得更多免費Revit教學視頻。
本文版權歸腿腿教學網及原創作者所有,未經授權,謝絕轉載。
上一篇:Revit技巧 | 如何用revit畫風管?Revit風管系統的應用詳解與未命名修復
下一篇:Revit技巧 | revit怎么自建族?僅需三步!創建出三十種類型的族!
推薦專題